張江科學城
又有新項目
“創新藥產業化平臺一期項目”
規劃設計方案正在公示中
一起來看↓

建設單位
上海張江創新藥產業基地建設有限公司
項目名稱
創新藥產業化平臺一期項目
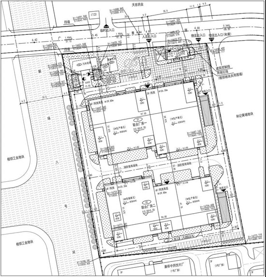
建設工程地址
用地位置:浦東新區康橋工業區南區A02B-05地塊
四至范圍:東至地塊紅線,西至新場八號河,北至廣青路,南至上?禈蛑兴庯嬈邢薰
建設內容
滿足創新藥中試、生產需求的標準廠房和倉儲等建筑,輔以動力、消防、環保等配套設施
圖片
△點擊可查看大圖
用地性質:二類工業用地
工程性質:工業廠房
主要經濟技術指標
建設用地面積:23393 平方米
總建筑面積:59068 平方米
(其中,地上46773平方米,地下12295平方米)
計容建筑面積: 46542平方米
容積率: 1. 99
綠地率: 20.01%
建筑高度: 39.80米
建筑層數: 6F(聯合廠房一\二)、1F (化學品庫\垃圾房\門衛)、-1F (地下室)
公示方式
現場公示地址:項目現場
公示網址:
http://www.pudong.gov.cn/shpd/
反饋方式:如對規劃草案有反饋意見,請于2021年1月10日前(以寄出郵戳為準)將書面意見郵寄或電郵至張江科學城建設管理辦公室行政審批處,也可到項目所在地相關鎮、街道反映。
地址:上海市張東路1158號3號樓(注明項目方案公示意見)
郵編:201203
電郵:zjgh@pudong.gov.cn
(來源:浦東發布)
掃描關注上海頻道微信
掃描關注上海頻道微博