好消息!
浦東又將新建一個醫療中心,
就在滬東社區,
建設單位是同濟大學附屬東方醫院。
大家是不是特別期待?
快來和小布一起看詳情!

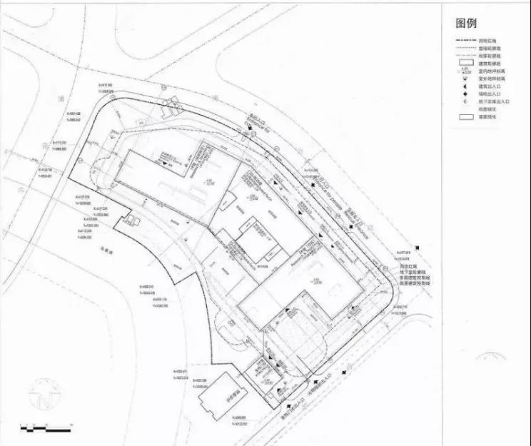
滬東區域醫療中心新建工程
建設單位名稱:
上海市東方醫院(同濟大學附屬東方醫院)
建設項目名稱:
滬東區域醫療中心新建工程
項目建設地址:
滬東社區Y000804編制單元11-04地塊
? 東至長島路
? 南至馬家浜河岸
? 西至浦東大道
? 北至博興路
具體建筑數據如下:
地上部分:共114800平方米
主樓:共13層,113430平方米
其中,北側塔樓13層;中部裙房7層(不含設備層);南部塔樓12層。
發熱門診:共3層,1370平方米
地下部分:共3層,55000平方米
合計總建筑面積:169800平方米
容積率:3.5
綠地率:35%
用地面積:31485.6平方米
公示詳情
反饋意見截止日期:2021年3月24日,以寄出郵戳為準。
采取網上和現場同步公示的方式
現場公示地址:滬東新村街道辦事處;滬東社區Y000804編制單元11-04地塊
公示網址:浦東新區規劃和自然資源局官網
公示采取書面信函方式聽取公眾意見
反饋意見的信函請寄:浦東新區新金橋路27號14號樓,上海金橋經濟技術開發區管委會行政審批服務處,郵編:201206,并在信函封面上標注“項目公示意見”。
期待它的建成能
讓浦東新區的醫療設施更加完善,
提升醫療水平,
進一步保障老百姓的健康~
(來源:浦東發布)
掃描關注上海頻道微信
掃描關注上海頻道微博