正在公示!寶山這處住宅即將加裝電梯
2021年10月12日20:27 |
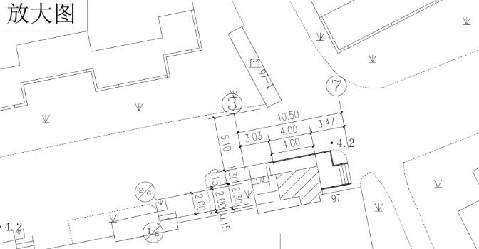
依據《上海市建設工程設計方案規劃公示規定》的要求,由上海市寶山區規劃和自然資源局監督,寶山區通河四村97號單元多層住宅加裝電梯項目設計方案正在公示。
通河四村97號單元多層住宅加裝電梯項目

公示現場地點:通河四村小區公示欄/電梯加裝樓公示欄
公示期限:2021年10月9日至2021年10月18日
收集意見截止期:2021年10月25日
意見反饋途徑:
(1) 信函方式: 寶山區規劃和自然資源局,通訊地址:寶山區寶林路45號,郵政編碼:201999,電子信箱:fangangongshi@163.com(郵件名稱、主題中應標明公示名稱)
(2)信函方式:上海市寶山區張廟街道辦事處,通訊地址:上海市寶山區呼瑪路 800號,郵政編碼:200431,電話:021-36110877
項目情況咨詢:
上海市寶山區通河四村(中塊)業主委員會,通訊地址:上海市寶山區通河四村97號,聯系電話:13788993351
(來源:上海寶山)
(責編:葛俊俊、軒召強)
分享讓更多人看到
相關新聞
- 評論
- 關注
























第一時間為您推送權威資訊
報道全球 傳播中國
關注人民網,傳播正能量