總建筑面積超12萬平方米!寶山這里新建住宅項目設計方案正在公示
2022年10月28日15:12 |
@寶山的小伙伴們
看過來!
可容納824戶居民
機動車停車位947輛
……
寶山這里新建住宅
項目設計方案正在公示

依據《上海市建設工程設計方案規劃公示規定》的要求,由上海市寶山區規劃和自然資源局監督,寶山區顧村大型居住社區BSP0-0104單元0414-02、0415-01地塊項目設計方案正在進行公示,敬請關注。

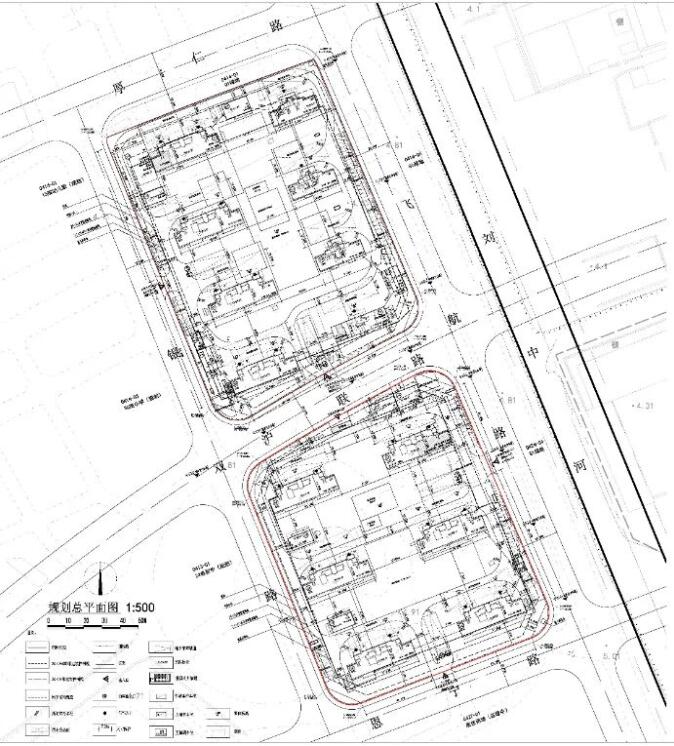
寶山區顧村大型居住社區BSP0-0104單元0414-02、0415-01地塊項目設計方案

該項目東至飛航路,南至恩寧路,西至銀雙路,北至厚仁路。
0415-01和0415-02地塊用地面積39642.4平方米,總建筑面積121340.56平方米,總戶數824戶,設有機動車停車位947輛,非機動車停車位765輛。


公示網站:寶山區人民政府門戶網站
公示現場地點:顧村鎮項目現場
公示期限:2022年10月19日至2022年10月28日
收集意見截止期:2022年11月4日
意見反饋途徑:
(1)信函方式:上海市寶山區規劃和自然資源局
通訊地址:寶山區寶林路45號105室
郵政編碼:201999
電子信箱:fangangongshi@163.com(郵件名稱、主題中應標明公示名稱)
(2)信函方式:上海市寶山區顧村鎮人民政府
通訊地址:上海市寶山區泰和西路3431號
聯系電話:021-36190028
電子信箱:snxmb2010@163.com(郵件名稱、主題中應標明公示名稱)
項目情況咨詢:上海保錦潤房地產有限公司
聯系人:王世祥
聯系電話:021-52585038
通訊地址:上海市寶山區顧北東路575弄1-17號
(來源:上海寶山?)
(責編:葛俊俊、軒召強)
分享讓更多人看到
相關新聞
- 評論
- 關注
























第一時間為您推送權威資訊
報道全球 傳播中國
關注人民網,傳播正能量